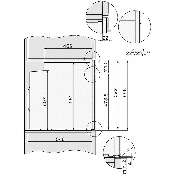
Miele se remarca prin varietatea de produse pe care le pune la dispozitia utilizatorilor, iar electrocasnicele se afla printre acestea. Produsele Miele se adreseaza in special clientii din Europa, carora le ofera o gama de electrocasnice caracterizate in primul rand de un foarte bun raport calitate pret. Cuptorul incorporabil Miele H 7260 B EDST despre care vorbim astazi este un cuptor electric ce se incorporeaza in blatul mobilei de bucatarie, avand dimensiunile (I x L x A) mm 596 x 595 x 569 si o greutate neta de 42 Kg. Golul de montaj in blatul de la bucatarie trebuie sa aiba dimensiunile de (I x L x A) mm 600 x 560/568 x 550 iar blatul trebuie sa aiba o grosime de minim 30 mm.
Cuptorul incorporabil Miele H 7260 B EDST cu control electronic are un design modern, de culoare inox, iar materialul din care este construit este inox cu suprafata anti-amprenta si sticla neagra.
Aceasta suprafata poate fi distrusa de diverse materiale adezive in procesul de curatare, pierzandu-si propietatile de protectie la murdarie. Cuptorul incorporabil Miele H 7260 B EDST iese de asemenea in evidenta si prin tehnologia avansata pe care se bazeaza, si care ii asigura performante inalte la gatit cu cel mai mic consum posibil.
Panoul de comanda pozitionat frontal de dimensiuni generoase cu control Touch-Control, are un ecrane cu afisaj color TFT de 2.8″ cu meniu text in apoximativ 30 de limbi printre care si romana, de unde ne putem informa de: Ora curenta; Informatii despre functiile accesate; Temperatura; Durata de coacere; Programele automate de coacere si setarile pe care le facem. Cu ajutorul butonului On/Off putem sa pornim sau sa oprim cuptorul. In zona de navigare de pe ecran, putem sa rasfoim cu ajutorul celor doua butoane cu sageti, in sus sau in jos in listele de optiuni. O data ce ati selectat o optiune sau o functie, alegerea facuta se confirma cu ajutorul butonului OK. Cu ajutorul butonului senzitiv notat cu semnul grafic de cronometru, in cazul in care cuptorul nu functioneaza, puteti sa activati aceasta functie si ca un ceas de bucatarie. Iar daca in acelasi timp este si cuptorul in functie, puteti sa fixati durata de coacere, sau o ora de pornire sau de oprire a cuptorului. Setarea cronometrului se face pentru o durat de maxim de 59 de minute si 59 de secunde. Cu ajutorul butonului senzitiv notat cu semnul grafic de bec, putem sa activam sau sa dezactivam sistemul de iluminare al cuptorului. Cu ajutorul butonului cu senzor de pe ecran notat cu semnul grafic de sageata intoarsa putem sa anulam programul de coacere accesat, sau sa revenim la setarile anterioare. Cu ajutorul programatorului digital, cu actionare senzitiva, si a functiilor din dotare, putem sa accesam urmatoarele functii din dotare: setare temperatura si timer, indicatorul de pre-incalzire, tasta info pentru obtinere de informatii suplimentare, propunere de temperatura, afisare reala a temperaturii, 5 programe automate de coacere si tasta senzitiva Start/Stop. Nivelul de temperatura necesar pentru prepararea fiecarui aliment este de la 25°C la 300°C. Cu ajutorul programatorului Ts cu senzor, monitorizarea timpului de preparare si setarea timpului de oprire/pornire a cuptorului se realizeaza automat. Cuptorul are in dotare si functia Timer cu pornire intarziata pana la maxim 24 h cu afisare timp ramas. Cu aceasta functie de pornire intarziata, poti programa cuptorul, sa inceapa programul selectat la orice ora. Cuptorul ne anunta si printr-un semnal sonor la terminarea programului de coacere. Pentru o buna informare programele de gatire Automate sunt sortate pe categori, pentru a avea posibilitatea de a alege programul automat potrivit pentru reteta aleasa. De asemenea beneficiati de sfaturi cu privire la modul de: Decongelare; Fierberea diferitelor alimenta; Coacere; Prajire; Deshidratarea fructelor, legumelor, ciupercilor sau a verdeturilor; Gatire lenta pentru alimente sensibile la temperatura mare; Semi-preparate; Gatit la Grill; Nivelul de coacere din cuptor; Temperatura de coacere; Durata de coacere; si incalzirea vaselor. Cu tasta senzitiva Start/stop din dotare puteti sa intrerupeti functionarea cuptorului pentru a adauga sau de a scoate un ingredient la preparat si sa continuati coacerea preparatului pana la finalizare. Dacă doriti sa anulati durata de preparare, readuceti durata de preparare inapoi la zero. Dupa preluarea modificarii, cuptorul va functiona in continuare fara durata de preparare. Aceasta interfata cu butoane moderne, ofera acces direct la temperatura si la modurile de încalzire practice. Indicatorul de caldura reziduala ne indica respectiv caldura reziduala din interiorul cuptorului. In plus programul Child Lock permite blocarea comenzilor cuptorului pentru a preveni pornirea accidentala sau modificarea parametrilor de catre copii in timp ce cuptorul este in functiune. Copiii se pot juca langa cuptor, fara ca sa fie supravegheati permanent. Trebuie mentionat si faptul ca butonul de la nivelul panoului iese in afara cand trebuie sa fie utilizat si se retrage in interior dupa efectuarea comenzilor, conferind suprafetei un aspect neted si elegant.
Constructiv cuptorul incorporabil Miele H 7260 B EDST are un aspect robust cu un spatiu interior de 76 litri, cu iluminare interioara cu halogen Osram 66725 AM/A, 230 V, 25 W, G9, fiind dotat cu: tava pentru scurgere grasimii si gratar din sarma. Atunci cand cuptorul functioneaza, sistemul de iluminare se dezactiveaza automat dupa 15 secunde, pentru a face economie de energie. Pentru a activa din nou sistemul de iluminare se apasa din nou pe butonul dedicat de pe panoul de comanda. Miele H 7260 B EDST are si un sistem de ventilatie, care distribuie caldura uniform, producand o coacere rapida si uniforma, iar alimentele nu se ard si nu se prind de vas, deoarece caldura vine din toate directiile, fiind dispersata de ventilator. Usa cuptorului este alcatuita din 4 straturii de sticla ce asigua o buna izolare termica, in plus un ventilator ascuns asigura o racire tangentiala a carcasei cuptorului si prin intermediul unor fante si a geamului de la usa cuptorului. Ventilatorul de racire se opreste automat atunci cand temperatura din cuptor scade sub 70°C. Usa cuptorului demontabila este prevazuta pe interior cu o suprafata din sticlă perfect neteda, fara suruburi sau nituri. Aceasta solutie inseamna siguranta sporita in utilizare şi curatare mai usoara. Usa mai este prevazuta si cu balamale mici si mai stabile pentru a imbunatati funcţionalitatea si aspectul estetic al cuptorului. Balamalele usilor au un profil neted si in acelasi timp sunt rezistente si durabile suportand o greutate suplimentara de maxim 15 Kg. Pentru un plus de confort cuptorul incorporabil Miele H 7260 B EDST detine si tehnologia de deschidere/inchidere amortizata a usii Soft Close/Soft Open, cu acest sistem de deschidere/inchidere in bucatarie va fi mai multa liniste. Mecanismul special al usii evita orice zgomot puternic de fiecare data cand usa este deschisa sau inchisa.
Capacitatea cuptorului fiind mare, il recomanda in special familiilor numeroase sau pensiunilor, unde se prepara des alimente sanatoase la cuptor. La manevra de deschidere a usi cuptorului in functie, sistemul de iluminare se activeaza automat si ventilatorul se opreste automat pentru a nu se pierde caldura din interior. Manerul cuptorului este facut dintr-o bara rezistenta de otel inoxidabil de culoare argintiu.
Cuptorul are in dotare si 5 randuri de ghidaje laterale din sarma pentru tavi. Fiind realizate din oţel cromat, ghidajele laterale demontabile asigură stabilitatea tăvilor de copt şi facilitează glisarea la introducerea şi scoaterea acestora din cuptor. Ghidajele pot fi scoase şi spălate în maşina de spălat vase. Cuptorul are in dotare in plus si un rand de ghidaje telescopice Flexi Clip HFC 70-C cu opritor pentru tavi. Fiind realizate din otel cromat, ghidajele laterale telescopice demontabile asigura un plus de stabilitate a tavilor de copt si facilitează glisarea la introducerea si scoaterea acestora din cuptor cu o singura mana. Ghidajele telescopice Flexi Clip pot sustine o sarcina maxima de 15 kg. Ghidajele la randul lor pot fi scoase si spalate in masina de spalat vase.
Alte caracteristici care trebuie mentionate sunt urmatoarele: usa cu sistem de curatare usor si cu aspect reflexiv. Astfel usa interioara a cuptorului isi va pastra aspectul stralucitor initial, cu eforturi minime de intretinere. Dupa utilizare acest cuptor dispune si de functia de curatare Perfect Clean, unde datorita suprafetei din email cu insertii catalitice de mare densitate a cavitati interioare, a tavilor de copt si a gratarelor, ce au un finisaj de suprafata antiaderente, resturile alimentare este foarte usor de indepartat. Indepartarea petelor se face numai prin folosirea apei caldute cu putin detergent.
Cuptorul incorporabil Miele H 7260 B EDST are 10 functii si 9 moduri de incalzire si distributie a energiei termice care vor contribui la realizarea a diferitelor feluri de mancare fara a pierde gustul si calitătile utile ale produselor. Pe partea de funcții, modelul dispune de urmatoarele imbunatatiri: Cu grill-ul electric mare/mic cu puterea de maxim 2700 W/h rabatabil pentru o curatare usoara, obţinem cele mai bune rezultate la rumenire, chiar şi cu vase mai mici. Optiunea grill face ca rumenirea paini prajite sa fie rapida si usoara. Este cea mai buna modalitate de a rumeni painea prajita servita la micul dejun, de a prepara kebab si legume si de a face toppingurile mai crocante. Cu modul de gatire Grill mic, acest tip de incalzire este adecvat pentru prepararea la grill a fripturii, a carnaciorilor, a pestelui si a feliilor de painii prajite in cantitati mici. La acest mod de gatire se foloseste numai partea din mijloc a corpului de incalzire pentru grill. Cu functia de gatire Grill rapida cu functionarea elementelor de incalzire superior complet la puterea de 2700 W, asigura un regim de coacere uniform, intr-un ritm accelerat. Aceasta functie asigura frigerea la gratar a alimentelor plate in cantitati mari si pentru feli de paine prajita. Aparatul detine tehnologia Turbo Grill unde gratarul consta in utilizarea simultana a elementului de gratar si a ventilatorului. Aceasta functie este perfecta pentru prajirea pe gratar a feliilor groase de carne. Gatit traditional cu functionarea elementelor de incalzire Superior si inferior static. Aceasta functie este ideala pentru pregatirea carnii, a painii sau a diferitelor produse de patiserie si pentru pizza. In plus functia este eficienta doar pentru gatirea preparatelor pe un singur nivel al cuptorului, de obicei pe raftul din mijloc (nivelul 2). Preparatul se poate muta mai sus sau mai jos in functie de preferintele pe care le ai la coacere. Daca vrei sa fie preparatul mai rumenit, il poti muta pe un raft mai sus, mai aproape de caldura din partea superioara. Cu ajutorul celor 2 forme de incalzire, rezistenta de coacere de sus si de jos, toate alimentele vor fi mai bine facute, atat in interior, cat si la exterior si datorita tavi cu suprafata de coacere de 1424 cm2. Cu functia de coacere cu Aer cald ce foloseste elementul de incalzire circular din jurul ventilatorului putem prepara simultan in cuptor pe trei rafturi. La aceasta functie setati temperatura cu 20 – 40°C mai jos decat pentru functia de coacere traditionala. Functia cu elementul de incalzire Inferior static, unde caldura este emisa de rezistenta cu puterea de 1100 W din partea inferioara a cuptorului. Aceasta functie este potrivita pentru prepararea alimentelor cu gatire lenta, care necesita caldura din partea inferioara, fara a fi rumenite sau pentru incalzire. Functia cu elementul de Incalzire inferior dinamic ideala pentru coacerea prajiturilor cu umplutura umede. Functia de incalzire delicata cu consum energetic redus, este ideala pentru cantitati mici de produse ca de exemplu: pizza congelata si pentru diferite feluri de mancare si fripturi din carne. Functia de coacere ECO ce foloseste sistemul de ventilare si elementul de incalzire circular din jurul ventilatorului, este folosita pentru a coace cantitatii mai mici de alimente, precum o portie de pizza, chifle semipreparate sau biscuiti, cu scopul de economisi energie. Cu opţiunea Fast Cooking (incalzire rapida), cuptorul nu mai necesită preîncălzire, ceea ce, evident, accelerează procesul. In numai patru minute, cuptorul multifuncţional se încălzeşte la 150°C si alimentele ajung pe masă cu 20% până la 50% mai repede. La aceasta functie cu aport energetic crescut este activat elementul superior de incalzire, elementul de incalzire pentru Grill, elementul de incalzire inelar si ventilatorul. Pe langa acestea avem la dispozitie si o functie speciala pentru a putea pregati o mare varietate de produse chiar si a unor produse congelate fara a mai astepta dezghetarea. Aceasta functie foloseste numai ventilatorul fara elemente de incalzire radiante.
Cuptorul incorporabil Miele H 7260 B EDST cu puterea instalata de 3600 W este un produs ce se incadreaza intr-un inalt standard de energie, anume clasa A+ cu un consum de energie de 1,05 kW/h cu rezistenta de sus si de jos static.
Analizand caracteristicile cu care este prevazut acest cuptor oferta este atractiva. Accesoriile cuptorului sunt urmatoare: O tava de copt universala; O tava de copt pentru coacerea de aluaturi si de paine; Ghidaje din sarma laterale pentru tavi; O pereche de ghidaje telescopice si un gratar din sarma ce poate fi utilizat pentru vase, forme de cozonac, fripturi, gratar si alimente congelate. Suprafetele celor doua tavi tratate cu email Perfect Clean ies in evidenta prin efectul anti-adeziv al alimentelor procesate si de posibilitatea de a fi curatate extrem de usor. Pentru a accesa si un alt produs ce face parte din categoria electrocasnice si doriti sa aflati mai multe informatii tehnice, scrieti in spatiul Search din dreapta sus, dati un Click produsului pe care doriti sa-l achizitionati, sau din ce categorie face parte de exemplu: aer conditionat, combina frigorifica, masina de spalat etc. si motorul de cautare va prezenta produsul cautat sau asemanator din baza directa de date.
Recomandare:
Este alegerea perfecta daca iti doresti un cuptor performant care sa faca fata cu brio indiferent de situatie si cerinte la un pret foarte bun: Verifica oferte pret
Primesti garantie 2 ani cu posibilitate de extindere, daca il comanzi de aici
Deasemenea daca ai noroc, zilele acestea il poti achizitiona la reducere, avand un discount semnificativ: Verifica pret redus
