Search by category:

Plita incorporabila cu hota inclusa Haier HAIH8IFMCF review

Our Score

     In ultimul timp se evidentiaza nevoia si plusul estetic pe care trebuie sa-l aduca bucataria in cadrul locuintei, valabil mai ales in bucatariile care comunica cu living-ul, open space, determinand o crestere a cererii electrocasnicelor pe culoarea neagra. Plita incorporabila cu hota inclusa Haier HAIH8IFMCF, ce face parte din seria I-Dual Series 6 de la Haier este o optiune pentru o astfel de solicitare: Design-ul elegant si atractiv cu posibilitate de instalare la nivelul blatului, este potrivit pentru un produs de ultima generatie. Pentru un plus de confort aceasta plita cu hota integrata o puteti instala si oriunde doriti in bucatarie, ca pe o masa insulara, complet degajata, lipsind peretele sau alte elemente de mobilier care au rolul pasiv de a restrange libertatea de miscare a curentilor de aer si deci de a ajuta captarea acestuia.Plita incorporabila cu hota inclusa Haier HAIH8IFMCE, Inductie (tip hota: evacuare), Clasa A, 4 zone de gatit, Double Bridge Zone, Control tactil multislider, Indicator de caldura reziduala, Timmer; Booster, Incalzire automata, Keep warm, 80 cm, Negru,     Aceasta plita incorporabila cu hota inclusa Haier HAIH8IFMCF cu marginile sanfrenate este actionata de butoane touch screen pozitionate in partea frontala a plitei, cu variator de putere in 9 trepte plus treapta intensiva, fiind construita din cristal vitroceramic. De pe panoul de comanda cu control tactil multislider cu intrerupator si pictograme sugestive putem sa accesam urmatoarele functii ale acestui model: Starea de funcţionare; Zonă de gătit Double Bridge Zone; Incalzire reziduala in 3 pasi; Semnal sonor; Putere suplimentara; Cronometru; Cronometru ECO; Siguranta copii; Semnal avertizare sfarsit de program de gatire; Functia Pauza; Functia Keep Warm; Functia Melting. Datorita panoului de comanda intuitiv, poti selecta zonele de gatit rapid si poti stabili nivelul de putere specific pe care il doresti in mod direct. Cand conectati plita la reteaua electrica, in primul rand trebuie sa spacificatii limba folosita pentru informatii, luminozitatea ecranului si volumul semnalizarilor sonore. Functia de Pauza stabileste toate zonele de gatit care functioneaza la cea mai mica temperatura. Cand aceasta functie este activata celelalte simboluri de pe panoul de comanda sunt blocate. Cu ajutorul butonului slider puteti sa setati nivelul de caldura al suprafetei de gatit vizate. Pentru un plus de confort cu ajutorul conexiuni Wi-Fi puteti controla plita si hota si de la distanta, folosind aplicatia hOn, cu ajutorul unui telefon inteligent sau cu o tableta Android sau iOS. Frecventa retelei Wi-Fi de acasa trebuie sa se incadreze in banda de 2,4-2,48 GHz. Folosind aplicatia hOn poti sa gatesti si in mai multe moduri sanatoase. Astfel folosind aceasta aplicatie Haier detine si functia Sous Vide ce este nelipsita marilor restaurante profesioniste din intreaga lume. Detinand aceasta functie, plita datorita procesorului inteligent va va ajuta sa creati si 10 retete inovative cu ingrediente/instructiuni, ce va vor depasi toate asteptarile. Folosind aceasta tehnologie poti sa alegi preparatul preferat, iar plita va afisa informatii despre fiecare zona de radiatie termica folosita, pentru o monitorizare atenta si fara efort. Aplicatia Grill selecteaza categoria de alimente si modul de gatit Grill, in care plita va selecta temperatura si durata corecta de gatit. Aplicatia Simmering este o functie cu ajutorul caruia poti pregati sosuri sau tocane cu o durata in functie de preparat. Cu ajutorul aplicatiei hOn, poti sa gasesti si o functie de gatit Automata ce va aduce foarte usor preparatele aproape de temperatura de fierbere si o va pastra pe toata durata sesiuni de gatit. Iar la modul de gatit cu aport de abur poti prepara ingrediente din carne, peste sau legume in vase speciale. Astfel la modul de gatit Steaming in care folosesti vase speciale, prepararea alimentelor este mai rapida decat fierberea traditionala, pentru ca ingredientele nu sant introduse in apa, iar pierderea de nutrienti si vitamine este mult redusa. Aplicatia hOn are si un asistent vocal Alexia, ce te indruma si iti da indicatii cum sa folosesti acest aparat inteligent. Pentru conectare aveti nevoie de parola retelei Wi-FI si a plitei.     Prin activarea functiei Multi Zone va permite sa reglati temperatura, prin mutarea vaselor in diferite pozitii, pe intreaga suprafata cu inductie a plitei. Aceasta functie imparte automat toate cele 4 zone de gatit ale suprafetei de incalzire a plitei cu setare a temperaturi cu ajutorul butonului glisor. In acest sens suprafata cu inductie detecteaza pozitia exacta a vasului si regleaza automat temperatura prestabilita de gatire. Mai mult puteti ajusta manual puterea de incalzire cu ajutorul glisorului, pe fiecare zona de radiatie, daca cel putin una dintre zonele de incalzire sunt activate automat. In acest sens daca doriti sa schimbati nivelul de caldura puteti sa ridicati vasul si sa-l schimbati pe o alta zona de radiatie. Oprirea unei zone de incalzire se face prin mutarea butonului glisor in pozitia 0. Iar oprirea totala a plitei si a hotei se face cu ajutorul butonului On/Off. Plita cu functia de gatit Double Bridge Zone, de pe partea stanga si de pe partea dreapta, ne da posibilitatea de a folosi plita intreaga suprafata de incalzire pentru prajirea alimentelor in vase cu dimensiuni extinse cu diametrul de peste 200 mm, sau vase cu dimensiuni mai mici cu diametrul intre 140 sau 180 mm. Aceste zone de gatit au cate 2 zone mai mici egale de pe partea stanga si pe partea dreapta, care sunt activate de inductori individuali, ce permit gatirea alimentelor indiferent de plasarea vasului pe o zona de gatit a plitei. In acest sens daca mutam vasul de pe suprafata de incalzire din fata pe spate sau invers, senzorul zonei flexibile detecteaza imediat pozitia vasul pastrand aceeasi putere de incalzire pe noua suprafata de incalzire.Plita incorporabila cu hota inclusa Haier HAIH8IFMCE, Inductie (tip hota: evacuare), Clasa A, 4 zone de gatit, Double Bridge Zone, Control tactil multislider, Indicator de caldura reziduala, Timmer; Booster, Incalzire automata, Keep warm, 80 cm, Negru,      Pentru a activa aceasta functie de gatit Punte de pe partea stanga a plitei trebuie, sa apasati simultan cele doua zone de gatit selectate pe care doriti sa le folositi, timp de 3 secunde, iar indicatorul de punte se aprinde. Nivelul de putere la aceste doua zone de gatit cuplate se va face cu ajutorul butonului slider principal de selectie puterea termica a zonei de gatit de pe partea stanga. Pentru a dezactiva aceasta repetați procedura de activare, apoi setați nivelul de putere in pozitia „0”. Pentru a activa aceasta functie de gatit Punte de pe partea dreapta a plitei se repeta identic aceleasi manevre. Semnalizarea zonei indica zonele de gatit cuplate, sau daca utilizam numai una din zonele de radiatie. Pentru a mai adauga un alt vas suplimentar pe suprafata de incalzire a plitei este nevoie mai intai sa dezactivati zona de gatit, pentru a detecta noul vas, urmand ca ulterior sa activati din nou zona de gatit. La aceasta zona puteti sa folositi si o combinatie a suprafetelor de gatit putand sa activati de ex: Toate cele 2 zone de gatit prin inductie de pe partea stanga; Aceasta combinatie a zonelor de gatit se aplica identic si pe partea dreapta a plitei. Plita incorporabila cu hota inclusa Haier HAIH8IFMCF are dimensiunile de (H, L, A) mm 211 x 830 x 515 si cu o greutate neta de 27,4 Kg. In plus plita este dotata si cu sistemul Opti Fix de instalare usoara. Astfel datorita acestei tehnologi il puteti monta oriunde doriti, cu instalare usoara datorita sistemului de prindere (snap-in). Nisa de montare a acestui model in blatul dulapului are dimensiunile de (L, A) mm 807 x 492 cu grosimea blatului de minim 30 mm, iar latimea blatului sa fie de minim 600 mm.Haier HAIH8IFMCE nákres     Plita incorporabila cu hota inclusa Haier HAIH8IFMCF iese de asemenea in evidenta si prin tehnologia avansata pe care se bazeaza, si care ii asigura performante inalte la gatit cu cel mai mic consum posibil. La acest model cu inducție de la Haier, gradul de uzură al vaselor este aproape inexistent în timp, pentru că acestora nu li se aplică nicio căldură. Sub „ochiul” de gătit se află un electromagnet care transformă practic vasul de gătit într-un generator de căldură, fara ca spatiul din jurul acestuia sa se incalzeasca. Pe plita cu inducție poți folosi orice vas care este conductor magnetic, dar vasele speciale pentru plitele cu inducție au funduri mai groase pentru o eficiență mai mare. Nu vor funcționa însă niciodată vasele din aluminiu. În doar câteva secunde vei aduce la fierbere un litru de lichid, iar temperatura rămâne constantă pe tot decursul gătitului. Cele patru zone de gatit sunt dispuse in asa maniera incat veti putea apela la utilizarea simultana a acestora. Suprafata plitei fiind din cristal vitroceramic High Speed, are un design elegant si este foarte usor de curatat. Datorita procesului de productie inovator dezvoltat si patentat de SCHOTT, acest model vitroceramic de la Haier este produs fara a se utiliza in procesul de fabricatie, arsenic sau metale grele. Aceasta solutie, unica in lume, asigura beneficii considerabile pentru mediul inconjurator. La sfarsitul duratei indelungate de viata utila, acest model de plita poate fi reciclat si reutilizat ca material de constructie. Puterea de radiatie termica prin inductie al plitei se face prin control electronic al puterii in 9 trepte de putere, simplificand modul de utilizare. La aceasta plita senzorul intrerupe alimentarea cu energie a zonei de inductie de pe toata suprafata activa a plitei, imediat ce vasul de gatit este luat de pe zona de gatit, fara ca aceasta sa fi fost deconectată în prealabil. Pentru un rezultat bun al prepararii, este recomandabil ca zona feromagnetica a fundului oalei sa corespunda cu mărimea zonei de gatit sau sa fie mai mare. Pe acest model poti sa pui vase de dimensiuni si forme diferite cu conditia ca vasele sa se incadreze in perimetrul de radiatie ca sa fie recunoscute automat de senzor. In functie de aceste cerinte specialisti de la Haier au realizat acest model de plita Multi Zone formata dintr-o zona de radiatie extinsa pe toata suprafata de incalzire a plitei. Detinand aceasta tehnologie zonele de incalzire mari si flexibile se vor adapta automat la marimea si forma vaselor dumneavoastra. In acest sens puteti folosi orice tip de cratita. Utilizand aceasta optiunea a plitei, face gatitul mult mai accesibil si confortabil. Fiecare zona de radiatie este prevazuta si cu un timer individual, pentru ca tu sa ai posibilitatea de a pregati mai multe retete diferite de gatire. Aceasta tehnologie constituie un ajutor inteligent pentru rezultate diverse de gatire. La finalul unui ciclu de gatire plita ne va anunta si printr-un semnal sonor ca preparatul este gata. Cand este indepartat vasul de pe suprafata de incalzire, functionarea plitei se opreste automat dupa 2 minute, daca nu se intervine manual de catre utilizator, pentru a face economie de energie. Pe aceasta suprafata de gatit de pe partea stanga sau dreapta a plitei cu functie flexibila, poti sa plasezi un vas mai mare de forma ovala sau dreptunghiulara care sa acopere doua sau patru zone de radiatie. In acest sens vasul mai mare trebuie sa acopere centrul zonelor de incalzire selectate, insa sa nu depaseasca marcajul zonelor de incalzire selectate. Cu functia de incalzire Automata va da posibilitatea sa accelerati puterea setata, ce este disponibila pe intervalul de putere 1-8. Activand aceasta functie putem sa initiem o gatire mai rapida, eliminand riscul de a arde mancarea, deoarece temperatura nu o depaseste pe cea a niveluli de temperatura selectat. Pentru protectia aparatului si a noastra aparatul are in dotare protectie la supra-incalzire si un indicator de caldura reziduala cu control Opti Heat, ce are loc in trei etape, care avertizeaza utilizatorii cu privire la faptul ca zona de incalzire inca este fierbinte, chiar daca a fost dezactivata. Aceasta functie se deruleaza astfel: Dupa ce opriti zona de incalzire sau toata plita, cand temperatura depaseste 60°C, va apare o semnalizare grafica de atentionare. Caldura reziduala este semnalizata cu aceasta indicatie atat timp cat temperatura zonei de gatit este mai mare de 60°C. Cand temperatura scade sub 45°C, nu mai este pericol de accidentare. Aceasta functie ne permite sa gatim in siguranta si foarte comod. Functia de oprire automata dezactiveaza plita, daca nu asezati nici un fel de vas de gatit pe plita timp de 60 de secunde sau nu setati puterea de radiatie a zonei de gatire.

     Plita incorporabila cu hota inclusa Haier HAIH8IFMCF este dotat si cu functia Safety shutoff (oprirea de siguranta). Cu acest sistem de siguranta daca una dintre zonele de gatit nu este oprita, sau temperatura zonei de gatit nu este ajustata o perioada lunga de timp, zona respectiva se va opri singura. Zonele de gatit se opresc singure la urmatoarele intervale de timp: Setare pentru gatit, 1 si 3 cu oprire dupa 6 ore de functionare. Setare pentru gatit, 4 si 5 cu oprire dupa 5 ore de functionare. Setare pentru gatit, 6 si 7 cu oprire dupa 4 ore de functionare. Setare pentru gatit, 8 si 9 cu oprire dupa 1,5 ore de functionare. Aceasta plita este dotata si cu sistem de protectie la prea plin cu revarsare dupa un timp de maxim 10 secunde, prin deconectare automata. Functia Keep Warm din dotare poate fi utilizata in vederea pastrarii mancarii calde pentru servire si totodata pentru incalzirea farfuriilor sau a cestilor inainte de a servi preparatele culinare la masa. La aceasta functie temperatura este controlata automat si poate fi ajustata cu o precizie de 5°C in intervalul 40-100°C. Cu functia de Melting de mentinere la cald a plitei se foloseste aceasta aplicatie pentru topirea ciocolatei sau a untului sau pentru menţinerea la cald a reparatelor. Aparatul de gatit are in dotate functia Power Management, astfel in momentul achizitiei, plita este setata la puterea maxima. Din acest motiv este nevoie sa reglati setarea in raport cu limitele sistemului electric de alimentare din locuinta. Pentru a seta puterea plitei, dupa ce ati conectat plita la sursa de alimentare, aveti posibilitatea ca in decurs de 60 de secunde sa setati puterea convenabila. In acest scop se apasa timp de 5 secunde butonul notat cu semnul grafic de Blocare plita si de Pauza pana cand auziti un sunet, iar in continuare glisati simultan glisoarele de putere de pe partea stanga si de pe partea dreapta apasand pe 9 ultima treapta de putere, cu o semnalizare sonora. Afisajul va arata codul de conectare „CF6”. Dupa conectare cu ajutorul de Pauza prin apasari succesive selectati nivelul de putere de: 3,1; 4,5 si 7,4 kW. Pentru a salva selectia se apasa in continuare concomitent butoanele de Blocare panou de comanda si de Pauza timp de 1 secunda. Acest model este dotat cu functia Quick Start ce detecteaza si activeaza automat zona unde am pus un vas de gatit. In plus acest model are in dotare si o functie de temporizare cu functie de dezactivare de pana la 99 de minute, unde la sfarsitul timpului setat de noi opreste automat zona de radiatie emitand in acelasi timp si un semnal sonor de avertizare, cu posibilitatea de deconectare. Daca ne grabim, prin accesarea functiei 4 x Power Boost, se reduce timpul de fierbere cu pana la 50%. In aceaste zona de radiatie termica creste puterea atingând chiar 3000 W. Indicativul 4x inseamna ca toate cele 4 zone de preparare sunt dotate cu functia Booster. Aceste doua zone de inductie punte au in dotare fiecare si functia Power Boost numai atunci cand cele 2 zone de gatit de pe partea stanga sau de pe partea dreapta sant folosite independent. Prin activarea functiei Power Boost pot fi incalzite cantitati mari de apa mai repede decat cu ultima treapta de fierbere 9. Funcţia Power Boost foloseste un transfer energetic rapid in zona de fierbere aleasa. Iar perioada de functionare cu aceasta functie este de max. 10 min. Dupa depasirea acestei perioade de functionare plita comuta automat la treapta de fierbere 9. Daca in timp ce folositi funcția Power Boost este activata si a doua zona de inductie pe aceeasi parte a plitei, atunci puterea acestei zone de gatit se reduce automat la treapta 9 de fierbere. Cu functia de cronometrul ECO pentru fiecare zona de gatit, preparat poate fi cronometrat individual cu exactitate si convenabil, oferind un controlul deplin asupra procesului de gatire, generand si consumuri mici, prin intermediul afisajului cu ecran tactil. In acest sens funcţia Eco Timer opreate incalzirea zonei de radiatie inainte de a finaliza procesul de gatire, astfel incat poti folosi căldura reziduala in modul cel mai eficient, pentru a finaliza procesul de gatire. Astfel cand este activata functia de cronometrare Eco, incalzirea zonei de radiatie se dezactiveaza inainte de semnalul sonor de finalizare ciclu de gatire, facand economie de energie prin folosirea temperaturii reziduale. Diferenta de timp intre oprirea concreta a zonei de radiatie si semnalul sonor de finalizare depinde de temperatura accesata. In plus prin apasari succesive, puteti combina 1 zona, 2 zone de gatit flexibile pentru a gati in functie de necesitati. Cu aceleasi setari de temperatura, zonele legate sunt ideale pentru organizarea de mese, pentru evenimente festive. Astfel, poti gati preparatul tau la nivelul de incalzire 9 si sa-l mentii cald la nivelul de incalzire 1. Plita dotata si cu programul Child Lock permite blocarea comenzilor plitei si a hotei pentru a preveni pornirea accidentala sau modificarea parametrilor de catre copii in timp ce plita cu hota este in functiune. Copiii se pot juca langa plita/hota care nu functioneaza, fara ca sa fie supravegheati permanent. In plus optiunea Wipe Guard iti permite sa cureti plita cu inductie in timpul functionarii, prin blocarea temporara a panoului de control. Cu ajutorul unui cod (F) plita ne indica daca pe zona de gatit se afla un vas asezat incorect, prea mic, sau niciun vas. Functia de diagnosticare este si ea foarte utila deoarece este menita sa iti furnizeze informatiile potrivite atunci cand apar erori in programare sau chiar functionare a plitei, afisand codul (E)+cifra pe afisaj.

     Plita incorporabila cu hota inclusa Haier HAIH8IFMCF dispune de o putere maxima de 7,4 kW este impartita in 4 sub zone de gatit cu suprafete egale, cu dimensiunile de (L; l)mm 210/110 si cu o putere egala fiecare zona de incalzit prin inductie. O zona flexibila din zona de radiatie termica stanga din fata, cu puterea maxima de 2100W ce se mareste cu functia Booster la 3000W. O zona flexibile din zona de radiatie termica stanga spate, cu puterea maxima de 2100W ce se mareste cu functia Booster la 3000W. O zona flexibila din zona de radiatie termica dreapta fata cu puterea maxima de 2100 ce se mareste cu functia Booster la 3000W. O zona flexibila din zona de radiatie termica dreapta spate cu puterea maxima de 2100 ce se mareste cu functia Booster la 3000W. 

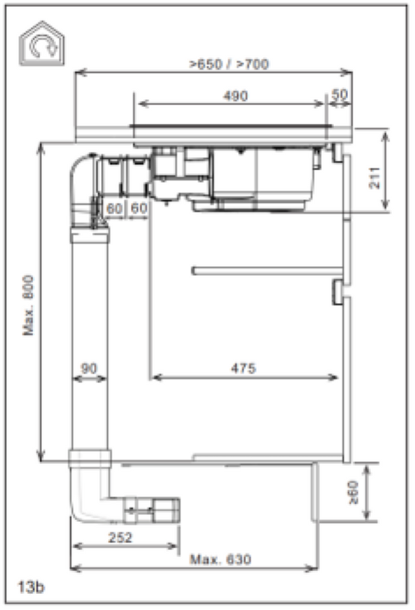
     Plita/extractorul Haier HAIH8IFMCF iese de asemenea in evidenta si prin tehnologia avansata pe care se bazeaza, si care ii asigura performante inalte la evacuarea aerului viciat din bucatarie, cu cel mai mic consum posibil. Panoul de comanda electronic este actionata de butoane touch screen pozitionate in partea frontala a plitei, cu variator de putere in 8 trepte plus 2 trepte intensive ce indeplinesc functiile de: Pornire/oprire Setare treapta de aspiratie; Activarea cronometrului de functionare. Astfel cu ajutorul butonului de Pornire/Oprire plita si hota pornesc concomitent. Pentru a opri plita si hota se apasa pe acelasi buton. In plus un semnal luminos ne va indica ca plita/extractorul se poate utiliza. Pentru a mari puterea de extractie a hotei, se gliseaza pe butonul variator de putere de pe panoul de comanda spre dreapta, iar pentru a micsora puterea de extractie a hotei, se gliseaza pe acelasi buton variator de putere spre stanga. Pentru a amplifica viteza de extractie a hotei se atinge si gliseaza butonul variator, dincolo de nivelul 8 de extractie. Nivelul 9 si 10 amplificat de extractie are o durata de functionare de maxim 15 minute, dupa care comuta automat la nivelul 8 de extractie. Activarea functiei de Cronometru cu care puteti sa selectati durata de functionare a hotei pe orice treapta de extractie se face prin apasarea concomitenta a butoanelor notate cu semnul grafic de (+) si de (-). In continuare prin apasarea concomitenta a butonului notat cu semnul grafic de (+) se mareste durata de functionare a hotei. Iar prin apasarea concomitenta a butonului notat cu semnul grafic de (-) se micsoreaza durata de functionare a hotei. Cand cronometru a terminat contorizarea de maxim 90 de minute, hota va emite si un semnal sonor, care va fi oprit prin apasarea unui buton de pe panoul de comanda. Functia Memento minute este o numaratoare inversa independenta de zonele de gatit si de zona de extractie. Functia Memento minute activeaza cronometrul cu numaratoare inversa independent de zonele de gatit si de extractie. Aceasta functie se activeaza prin apasarea concomitenta a butoanele notate cu semnul grafic de (+) si de (-). Iar pentru a seta aceasta functie urmati aceeasi pasi ca si la setarea functiei de cronometru. Cu optiunea de functionare Automata, hota va porni cu viteza de extractie cea mai potrivita, adaptand capacitatea de extractie la un nivel maxim de gatit, folosit in zona de incalzire prin inductie. Pentru un plus de confort la fiecare 40 de ore de functionare, un LED de semnalizare ne atentioneaza sa curatam filtrul de grasime. Pentru a activa aceasta atentionare se opreste hota si se apasa timp de 3 secunde buton de selectie de pe panoul de comanda. Pentru a-si mentine performanta optima de deodorizare indepartati grila pentru a avea acces la filtru si in continuare il incalziti intr-un cuptor pentru regenerare la o temperatura de 200 grade Celsius. Carbunele activ este integrat in structura ceramica, cu o mare suprafata de extractie, absorbind in totalitate impuritatile. Regenerarea filtrului permite o folosire de maxim 5 ani. Aceasta interfata cu butoane moderne ofera acces direct la functionarea plitei si a hotei in bune conditii.     Aceasta hota are si un sistem de extractie aer perimetral, printr-o grila de extractie ce mascheaza permanent, inclusiv in timpul functionarii, sistemul de filtrare. Astfel datorita acestei grile, fluxul de aer de extractie este mai intens pe laterale, aspirand mai eficient pe intreaga suprafata, fumul si mirosurile rezultate din gatit.Plita incorporabila cu hota inclusa Haier HAIH8IFMCF, Inductie (tip hota: filtrare), Clasa A, 4 zone de gatit, Double Bridge Zone, Control tactil multislider, Indicator de caldura reziduala, Timmer; Booster, Incalzire automata, Keep warm, 80 cm, Negru     Cu aceasta metoda de aspiratie Fluid Dynamic Efficiency creste eficienta hotei cu aproximativ 20% comparativ cu o unitate de aspiratie cu aceeasi putere a motorului, la un nivel de zgomot mai mic de 10%. Aceasta solutie constructiva mareste eficienta de extragere a hotei putand folosi plita la capacitate maxima cu toate zonele de incalzire in functie. Haier HAIH8IFMCF este dotata si cu un sistem de filtrare cu flux de aer unic, format dintr-un filtru de grasime multistrat din aluminiu, atasat de grila de admisie aer viciat din bucatarie, cu eficienta de retinere de clasa C, avand eficienta de filtrare grasime de 75,1 %. Acest filtru retine particulele de grasime din aburi, care altfel s-ar condensa pe peretii interiori ai hotei si ai tubulaturii, dupa care ar incepe sa se scurga ca o mazga lipicioasa. Acest filtru metalic se spala odata pe luna sau mai des daca este necesar. Spalarea acestui filtru este simpla, necesita doar apa fierbinte, detergent sau sapun lichid, ori poate fi introdus in masina de spalat vase. In ambele cazuri vom fi atenti sa nu-l indoim. Pentru un plus de confort orice lichid care se prelinge accidental pe grila de aspiratie, se scurge intr-o cuva ce se poate indeparta usor. Acest model are un sistem de ventilatie, care extrage vapori uniform si eficient, producand o aerisire rapida şi uniforma. Aerul viciat este extras si filtrat dupa care este dispersat in interior, printr-o tubulatura cu un diametru de 90 mm. Tehnologia de montat a tubulaturi se face conform cu normativul EU Nr. 65/2014. Astfel modul de instalare a tubulaturi in sistem de recirculare in interior, se poate face cu evacuare la baza mobilierului dupa urmatoarea schema de instalare.    Aceasta hota ce functionand numai prin recirculare in interior, este echipata si cu un sistem de filtrare din ceramica de la Haier, care are rolul de a neutraliza mirosurile neplacute din bucatarie. Sistemul de filtrare detasabil este usor de curatat deoarece este fabricat din ceramica. Pentru al curata indepartati grila pentru a avea acces la filtru si in continuare il incalziti intr-un cuptor la o temperatura de peste 180 grade celsius, pentru a-si mentine performanta optima de deodorizare. In plus acest model de la Haier are si protectie motor in cazul imbacsiri sistemului de filtrare, oprind prin protectie motorul. Corpul hotei este perfect neted. Aceasta solutie constructiva inseamna siguranta si eficienta sporita in utilizare si o curatare mai usoara. 

      Din punct de vedere energetic hota ce este incorporata la modelul Haier HAIH8IFMCF cu puterea instalata de 120 W se remarca prin consumul energetic mic de 39 kWh/an facand parte din clasa de consum A+.Haier Induktionskochfeld mit Abzug HAIH8IFMCF Rahmenlos     Calculul consumului energetic a fost facut intr-un regim mediu de operare al hotei, de o ora la nivelul 4 de extractie. Acest consum energetic i se datoreaza motorului inverter BLDC Green Tech cu puterea de 120 W din dotare avand turbina cu un singur circuit de aer, cu tehnologii de izolare fonice unice care face totul posibil ca energie consumata sa fie mica. Acest motor nu foloseste perii de carbon, fiind actionat de un magnet permanent ce nu provoaca frictiune mecanica si opereaza cu 0% pierderi de putere. Motorul hotei este Eco din punct de vedere al energiei consumate, are un zgomot redus, iar fiabilitatea este foarte mare. Astfel acesta motor la treapta de extractie maxima economiseste energie cu pana la 60% fata de un motor clasic de la o hota normala si este de 3 ori mai silentios. Turbina cu un circuit (este necesar instalarea unui traseu, prin mobilier), in care aerul aspirat din bucatarie se curata prin filtrul de grasime si sistemul de filtrare cu carbune activ, este in continuare recirculat in interior. În ceea ce priveşte zgomotul, nu aveti de ce sa va faceti griji, acesta hota de la Haier fiind un model destul de silentios, hota produce un zgomot secvential in cele 8 trepte de ventilare de la minim 38 la maxim 61 dB urmat de doua trepte Intensive de maxim 71 dB pe ultima treapta, poate fi folosita fara probleme chiar si pe timp de noapte. Puterea de ventilare a acestui tip de hota cu 8 trepte cu doua trepte Intensive, este de la minim 150 mc/h la maxim 459 mc/h, urmata pe ultima treapta Intensiva de 620 mc/h. Aceasta functie intensiva la ultima treapta de aspirare cu oprire automata dupa 15 minute de functionare se dovedeste a fi foarte utila, atunci cand dorim sa aerisim foarte repede incaperea. Plita incorporabila cu hota inclusa Haier HAIH8IFMCF este suficient de puternica pentru a recircula aerul in spatiul unde este montata plita, pentru a fi instalata intr-o bucatarie unde suprafata nu mai este relevanta. Acest spatiu unde este montata plita cu extractor poate fi redus sau foarte mare deoarece extractia aerului viciat se face imediat deasupra plitei. Acest aparat respecta standardul european de siguranta EN957 si este certificat CE respectand directiva EU ROHS DEEE (2011/65/UE) cu continut limitat de materiale daunatoare.Image result for foto EU ROHS

     Tensiunea de alimentare a plitei si a hotei este de 230 V sau de 400 V. Plita functionand in modul stand-by cu 0,49 W/h pentru a economisi energie electrica. Modul de control al functionari se face cu ajutorul butoanelor, senzitive, ce actioneaza si celelalte functii ale plitei si ale hotei. Analizand caracteristicile tehnice cu care este prevazuta plita/extractorul de la Haier oferta este atractiva. Pentru a accesa si un alt produs ce face parte din categoria electrocasnice si doriti sa aflati mai multe informatii tehnice, scrieti in spatiul Search din dreapta sus, dati un Click produsului pe care doriti sa-l achizitionati, sau din ce categorie face parte de exemplu: aer conditionat, combina frigorifica, masina de spalat etc. si motorul de cautare va prezenta produsul cautat sau asemanator din baza directa de date.

Recomandare:

     Este alegerea perfecta daca iti doresti o plita si o hota performanta care sa faca fata cu brio indiferent de situatie si cerinte la un pret foarte bunVerifica oferte pret

     Primesti garantie 2 ani, cu posibilitate de extindere, daca o comanzi de aici

     Deasemenea daca ai noroc, zilele acestea o poti achizitiona la reducere, avand un discount semnificativ: Verifica pret redus

Plita incorporabila cu hota inclusa Haier HAIH8IFMCF, Inductie (tip hota: filtrare), Clasa A, 4 zone de gatit, Double Bridge Zone, Control tactil multislider, Indicator de caldura reziduala, Timmer; Booster, Incalzire automata, Keep warm, 80 cm, Negru

Post Comment